КП 2
Характеристики изделия:
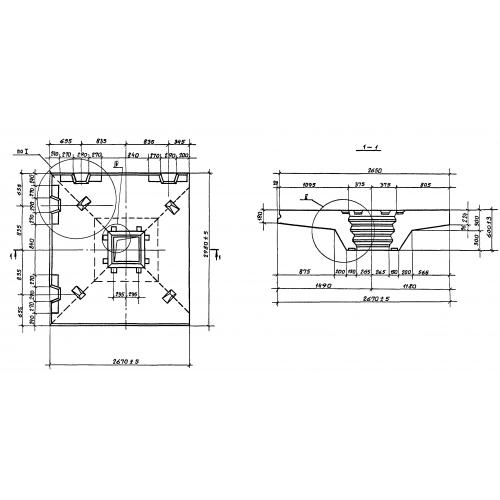
| Параметр | Значение |
|---|---|
| длина | 2980 мм |
| ширина | 2670 мм |
| высота | 600 мм |
| масса | 3900 кг |
| нормативный документ | ГОСТ 27108-86 |
Цена:
Рассчитать стоимостьКП 2 Капители колонн ГОСТ 27108-86.
| Параметр | Значение |
|---|---|
| длина | 2980 мм |
| ширина | 2670 мм |
| высота | 600 мм |
| масса | 3900 кг |
| нормативный документ | ГОСТ 27108-86 |
КП 2 Капители колонн ГОСТ 27108-86.
