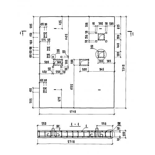
ПЛ 160-27 плита перекрытия шахты лифта
Характеристики изделия:
| Параметр | Значение |
|---|---|
| длина | 2710 мм |
| ширина | 3310 мм |
| высота | 200 мм |
| масса | 4350 кг |
| нормативный документ | Серия 1.089.1-1 |
Цена:
Рассчитать стоимостьПЛ 160-27 Плиты перекрытия шахт лифтов Серия 1.089.1-1.
