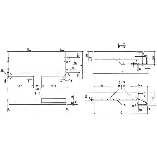
1ЛП 30.18

Чертеж изделия:
Характеристики изделия:
ПараметрЗначение
длина2980 мм
ширина1600 мм
высота320 мм
масса2460 кг
нормативный документСерия 1.152.1-8

1ЛП 30.18  Лестничные площадки плоские Серия 1.152.1-8.