ПР 60-15

Чертеж изделия:
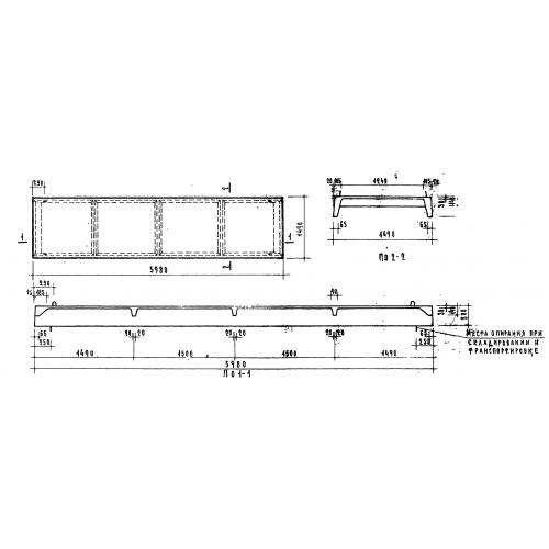
Характеристики изделия:
ПараметрЗначение
длина5980 мм
ширина1490 мм
высота300 мм
вес1492,5 кг
серия1.165-1

ПР 60-15 Панели ребристые по серии 1.165-1.