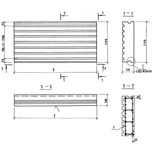
ПВ 51.15.40

Чертеж изделия:
Характеристики изделия:
ПараметрЗначение
длина5070 мм
ширина1490 мм
высота400 мм
вес2150 кг
серия1.165.1-10

ПВ 51.15.40 Вентилируемые панели покрытия по серии 1.165.1-10.