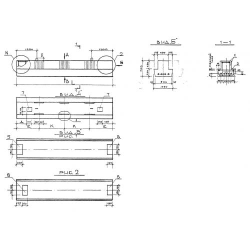
РДС 4.71
Характеристики изделия:
| Параметр | Значение |
|---|---|
| длина | 7070 мм |
| ширина | 550 мм |
| высота | 450 мм |
| вес | 3250 кг |
| серия | 1.220.1-2 |
Цена:
Рассчитать стоимостьРДС 4.71 Ригели покрытий по серии 1.220.1-2.
| Параметр | Значение |
|---|---|
| длина | 7070 мм |
| ширина | 550 мм |
| высота | 450 мм |
| вес | 3250 кг |
| серия | 1.220.1-2 |
РДС 4.71 Ригели покрытий по серии 1.220.1-2.
