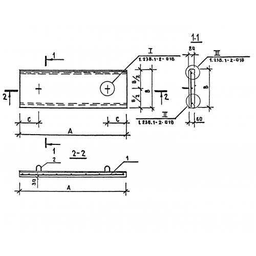
ПП 18.4 плиты парапетные

Чертеж изделия:
Характеристики изделия:
ПараметрЗначение
длина1790 мм
ширина420 мм
высота80 мм
масса130 кг
нормативный документСерия 1.238.1-2

ПП 18.4  Плиты парапетные Серия 1.238.1-2.