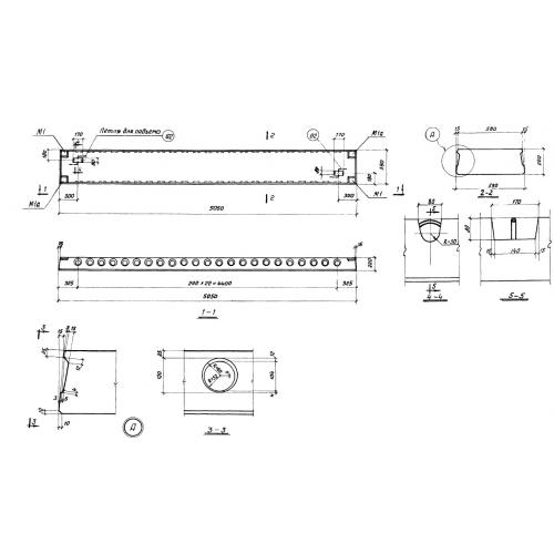
П 10

Чертеж изделия:
Характеристики изделия:
ПараметрЗначение
длина5050 мм
ширина590 мм
высота220 мм
вес1700 кг
серия1.440-1

П 10 Плиты ребристые по серии 1.440-1.