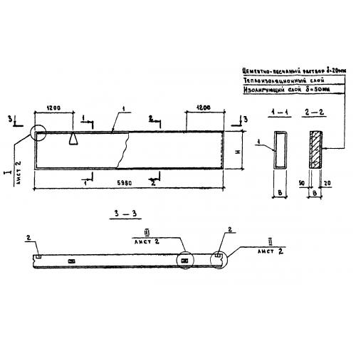
ПСД 60.18.50

Чертеж изделия:
Характеристики изделия:
ПараметрЗначение
длина5980 мм
ширина500 мм
высота1780 мм
вес10100 кг
серия1.832.1-9

ПСД 60.18.50 Панели стеновые двухслойные по серии 1.832.1-9.