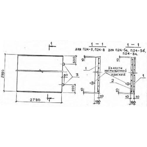
П 24 плиты лотков

Чертеж изделия:
Характеристики изделия:
ПараметрЗначение
длина2990 мм
ширина2780 мм
высота180 мм
масса3740 мм
нормативный документСерия 3.006.1-2/87

П 24 Плиты перекрытия лотков Серия 3.006.1-2/87.