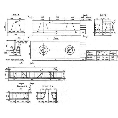
6БН 38

Чертеж изделия:
Характеристики изделия:
ПараметрЗначение
длина3800 мм
ширина1200 мм
высота500  мм
вес5080 кг
серия3.503.1-79

6БН 38 - блоки насадок.   Насадки на сваи по серии 3.503.1-79.