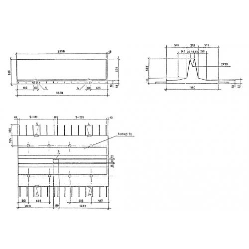
РП 60 блок разделительной полосы

Чертеж изделия:
Характеристики изделия:
ПараметрЗначение
длина2590 мм
ширина2060 мм
высота690 мм
вес1800 кг
серия3.503.1-81

РП 60 Блоки разделительной полосы по серии 3.503.1-81.