3ПС 54
Характеристики изделия:
| Параметр | Значение |
|---|---|
| длина | 1970 мм |
| ширина | 300 мм |
| высота | 6400 мм |
| вес | 7400 кг |
| серия | 3.902.1-12 |
Цена:
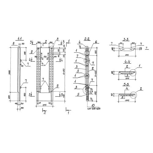
Рассчитать стоимость3ПС 54 Стеновые панели для способа "стена в грунте" по серии 3.902.1-12.
| Параметр | Значение |
|---|---|
| длина | 1970 мм |
| ширина | 300 мм |
| высота | 6400 мм |
| вес | 7400 кг |
| серия | 3.902.1-12 |
3ПС 54 Стеновые панели для способа "стена в грунте" по серии 3.902.1-12.
