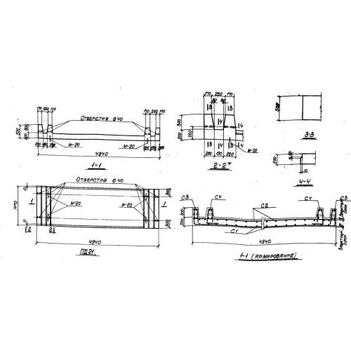
ПД 21
Характеристики изделия:
| Параметр | Значение |
|---|---|
| длина | 1470 мм |
| ширина | 4940 мм |
| высота | 500 мм |
| вес | 4500 кг |
| серия | ХТР 1-1 |
Цена:
Рассчитать стоимостьПД 21 Плиты днища по серии ХТР 1-1.
| Параметр | Значение |
|---|---|
| длина | 1470 мм |
| ширина | 4940 мм |
| высота | 500 мм |
| вес | 4500 кг |
| серия | ХТР 1-1 |
ПД 21 Плиты днища по серии ХТР 1-1.
