Ф
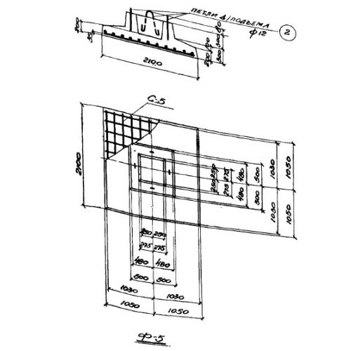
Характеристики изделия:
| Параметр | Значение |
|---|---|
| длина | 2100 мм |
| ширина | 2100 мм |
| высота | 600 мм |
| вес | 3310 кг |
| серия | ОФ 01-01 |
Цена:
Рассчитать стоимостьФ Фундамент по серии ОФ 01-01.
| Параметр | Значение |
|---|---|
| длина | 2100 мм |
| ширина | 2100 мм |
| высота | 600 мм |
| вес | 3310 кг |
| серия | ОФ 01-01 |
Ф Фундамент по серии ОФ 01-01.
.jpg)