ПСТ 30.18.3.5
Характеристики изделия:
| Параметр | Значение |
|---|---|
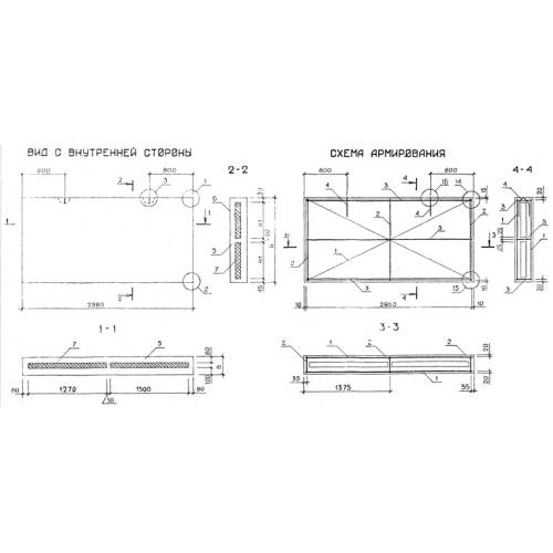
| длина | 2980 мм |
| ширина | 350 мм |
| высота | 1785 мм |
| масса | 2180 кг |
| нормативный документ | Шифр М25.13/98 |
Цена:
Рассчитать стоимостьПСТ 30.18.3.5 Панели стеновые трёхслойные по Шифру М25.13/98.
| Параметр | Значение |
|---|---|
| длина | 2980 мм |
| ширина | 350 мм |
| высота | 1785 мм |
| масса | 2180 кг |
| нормативный документ | Шифр М25.13/98 |
ПСТ 30.18.3.5 Панели стеновые трёхслойные по Шифру М25.13/98.
