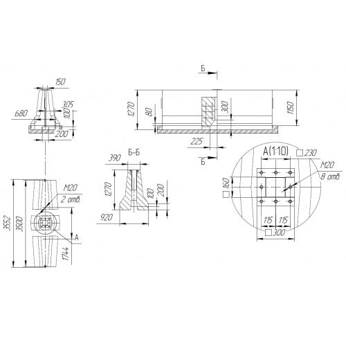
12 ДД

Чертеж изделия:
Характеристики изделия:
ПараметрЗначение
длина3552 мм
ширина920 мм
высота1270 мм
масса8750 кг
нормативный документТУ 5899-002-61548960-2010

12 ДД  Блоки парапетного двухстороннего стационарного ограждения по ТУ 5899-002-61548960-2010.